Wohnheim Potsdamer Straße
Headline Text
| Standort | Berlin-Tiergarten | |
| Auftrag | öffentlich | |
| Fläche | ca. 11.500 qm | |
| Zeitraum | 2013-2024 in mehreren Abschnitten | |
| Leistung | Bestandsanalyse, Planung, Leitsystem, Bauüberwachung | |
| Umfang | Neugestaltung, Sanierung, Möblierung |
Das Wohnheim an der Potsdamerstraße aus den 70er Jahren braucht eine Runderneuerung. Die offenen, langen Eingangsflure werden verglast und bieten nun einen sicheren Zutritt. Frische Farben beleben die Foyers und Flure. Farbcodes für die Etagen und ein eindeutiges Leitsystem schaffen Orientierung, Identifikation und Sicherheit.
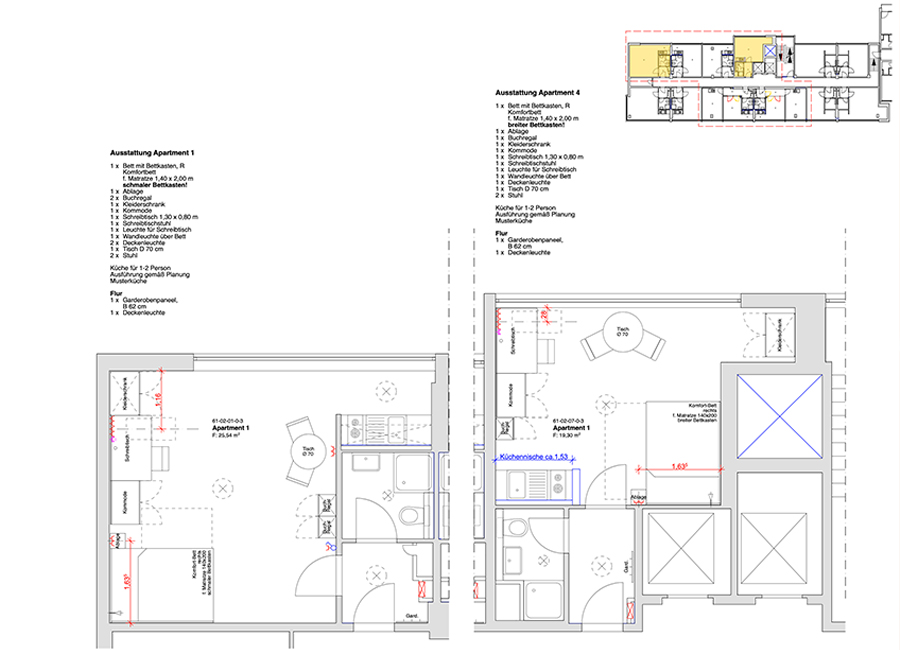
Von den farbigen Fluren aus betritt man die möblierten Miniapartments in neutralem grau/weiß, alle mit Duschbad und Kitchenette, viele mit Balkon. Hier bringen die Bewohner ihre Farben ins Spiel. Gemeinschaftliche Erlebnisse sind im Hausclub, im eigenen Fitnessbereich oder bei der gemeinsamen Wäsche im Waschsalon möglich. Eine Wohngemeinschaft der Extraklasse wird in der ehemaligen Hausmeisterwohnung im 14.Obergeschoss geschaffen. 6 Zimmer, 2 Bäder, eine großzügige Küche mit Dachterrasse und eine gigantische Aussicht über den Potsdamer Platz und die Stadt.
Rückblick