Personalräume Malteser Straße
Headline Text
| Standort | Berlin-Lankwitz | |
| Auftrag | öffentlich | |
| Fläche | 60 qm | |
| Zeitraum | 11.2017-08.2018 | |
| Leistung | Bestandsanalyse, Planung, Bauüberwachung | |
| Umfang | Neugestaltung, Sanierung |
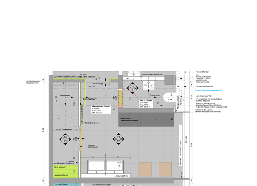
Sehr früh aufstehen, Zutaten vorbreiten, kochen, garen, braten, anrichten und austeilen, spülen und wieder alles reinigen. Das sind die Aufgaben der Mitarbeiter und Mitarbeiterinnen einer großen Mensa. Im Souterrain befinden sich die Umkleide- und Waschräume des Personals, die gründliche Sanierung zeigt die Wertschätzung für diese Mitarbeiter und Mitarbeiterinnen.
Der Damen- und Herrenbereich wird den Anforderungen entsprechend leicht angepasst, WC’s werden von Duschbereichen getrennt. Die Duschbereiche erhalten neue, farbige Fliesen, die dem Farbcode für den Damen-und Herrenbereich folgen. Die Umkleiden werden mit Spinden in ausreichender Anzahl ausgestattet. Spiegel und Sitzmöglichkeiten erhöhen den Komfort. So spiegelt die neue Gestaltung die Wertschätzung für die umfangreiche Arbeit, die hier geleistet wird, wieder.
Rückblick