Neubau Wohnheim Aristotelessteig
Headline Text
| Standort | Berlin-Lichtenberg | |
| Auftrag | öffentlich | |
| Fläche | 6.340 qm | |
| Zeitraum | 2017-2023 in mehreren Abschnitten | |
| Leistung | Bestandsanalyse, Genehmigungsplanung | |
| Umfang | Nutzungskonzept, Neubau, Fassadengestaltung, Begrünung, Wegeleitsystem, Möblierung |
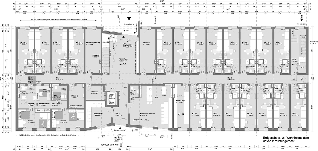
Auf dem großen Grundstück eines bestehenden Wohnheims in Karlshorst, erbaut in Plattenbauweise und bestehend aus drei 6-geschossigen Gebäuderiegeln ist eine weitere Nachverdichtung möglich. Umfangreiche Abstimmungen mit Bauaufsicht und Stadtplanung ermöglichen nun einen Neubau mit 176 neuen Miniapartments.
Städtebaulich schließt der Neubauriegel im rechten Winkel zum Bestand den großen Innenhof des Areals und schafft so eine grüne Oase inmitten der Stadt. Die Fassadengestaltung des Neubaus geht mit ihrem Raster auf die Vorhangfassadentafeln der Plattenbauten ein, seitliche Fassadenbegrünungen laden in den neu gestalteten grünen Innenhof ein. Das großzügige Foyer bietet Eingang, Orientierung und Begegnung. Von hier erreicht man den Hausclub mit großer Küche und Blick in den Garten, außerdem den Waschsalon. Mit Treppe oder Aufzug geht es in die oberen Etagen, wo wohnen in Einzelapartments mit Bad und Kitchenette oder barrierefreien 2-er Wohnungen möglich ist. Neuer Wohnraum für 176 Menschen.
Rückblick