Dachgeschoss Schreinerstraße
Headline Text
| Standort | Berlin-Friedrichshain | |
| Auftrag | privat | |
| Fläche | Wohnfläche 214 qm | |
| Zeitraum | 05.2019-01.2021 | |
| Leistung | Bestandsanalyse, Planung, Bauantrag, Bauüberwachung | |
| Umfang | Dachgeschossneubau, Ausbau, Möblierung, Begrünung |
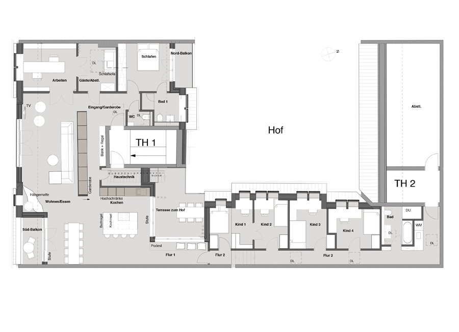
Eine Familie mit 4 Kindern möchte ein Altbau-Dachgeschoss zur Wohnung umbauen. Also alten Dachstuhl abreißen, Balken verstärken und Dach in Holzbauweise neu errichten mit genügend Zimmern für die Kinder im Seitenflügel, großzügigem Wohn-Essbereich mit Südterrasse und Elternbereich mit Arbeitszimmern im Vorderhaus.
Die Schadstoffanalyse des Dachstuhls ist negativ und so kann direkt mit dem Abbruch begonnen werden. Auch die Untersuchung der freigelegten Balkenköpfe der Decke über dem letzten Geschoss sind unauffällig. Gut, denn das ist das Fundament der neuen Wohnung. Die Balkenzwischenräume werden wieder aufgefüllt, der Boden nivelliert und ausgeglichen und dann wird der neue Dachstuhl aufgerichtet. Richtfest! Und der Innenausbau beginnt mit dem Stellen der Wände für die neue Raumaufteilung, alles in Holzbauweise für Nachhaltigkeit und gutes Raumklima. Zu guter Letzt wird das Dach begrünt für Regenrückhalt, Raumkühlung und Biodervisität. Fertig ist das neue Heim mitten in der Stadt für eine Familie mit 4 Kindern.
Rückblick