Anbau Blumenviertel
Headline Text
| Standort | Berlin-Pankow | |
| Auftrag | privat | |
| Fläche | 450 qm | |
| Zeitraum | 09.2022 - 07.2023 | |
| Leistung | Bestandsanalyse, Machbarkeitsstudie, Planung | |
| Umfang | Neubau, Umbau, Fassadengestaltung, Sanierung, Begrünung |
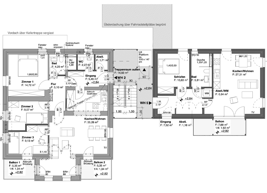
Ein in die Jahre gekommenes freistehendes Mehrfamilienhaus soll fit gemacht werden für die nächsten Jahrzehnte. Eine energetische Sanierung der Fassade und der Heizung ist geplant. Im erneuerten und angehobenen Dach entsteht neuer Wohnraum. Ein Anbau auf dem Grundstück in Holzbauweise mit Gründach schafft nachhaltigen Raum für drei weitere Wohnungen.
Ein neues außenliegendes Treppenhaus mit Aufzug wird zukünftig Alt- und Neubau erschließen. Das nicht mehr benötigte Treppenhaus im Altbau vergrößert die Wohnflächen. Das leicht ansteigende Grundstück wird neu modelliert, damit Platz für den dreigeschossigen Neubau entsteht. Hier entstehen drei kleine Apartments, das untere barrierefrei. Alle Wohnungen erhalten Balkone, die oberen auch Dachterrassen für mehr Lebensqualität. Die Wohnungen im Altbau werden neu strukturiert und mit großzügigen Wohnküchen modernen Ansprüchen angepasst. Der neugestaltete Garten mit Müllstellplatz und reichlich Platz für Fahrräder rundet diese nachhaltige Gestaltung für die nächsten Jahrzehnte ab.